Sản phẩm mẫu thiết kế Cafe phố dễ thương của chúng tôi là giải pháp hoàn hảo cho các quán cafe muốn tạo ra không gian độc đáo và thu hút khách hàng. Với thiết kế cổ điển, đậm chất vintage, sản phẩm mẫu thiết kế Cafe phố dễ thương của Kiến Trúc Trí Việt sẽ mang lại cho khách hàng cảm giác thoải mái và thư giãn tại một không gian ngoài trời trung tâm thành phố.
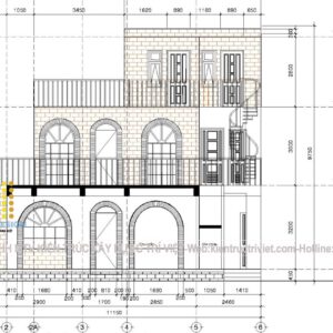
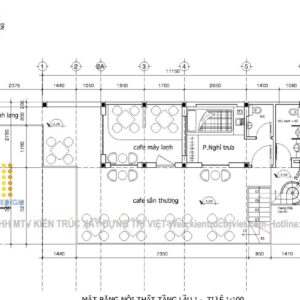
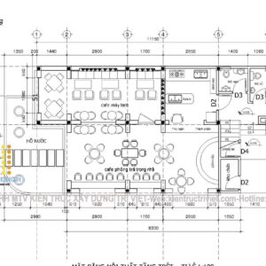
Quy mô quán cafe: Gồm 2 tầng lầu, có không gian trong nhà và không gian ngoài trời. Sân vườn được thiết kế thêm hồ nước giúp tạo sự mát mẻ.

Bản vẽ thiết kế


























