Hoặc gọi điện để được tư vấn ngay lập tức
- Kiểm tra quy hoạch
- Kiểm tra pháp lý nhà đất
- Kiểm tra hồ sơ xin phép xây dựng
- Miễn phí báo giá

Huyện Củ Chi với tốc độ phát triển nhanh chóng trong thời gian qua luôn được các nhà đầu tư lựa chọn làm điểm đến đầu tư. Cũng vì vậy mà việc xin giấy phép xây dựng tại Củ Chi được rất nhiều người quan tâm. Với kinh nghiệm hơn 20 năm trong các dịch vụ nhà đất, Kiến Trúc Trí Việt sẽ gửi đến bạn thông tin về dịch vụ xin cấp phép xây dựng tại Củ Chi và các lưu ý cần biết trong bài viết dưới đây.
Kiến Trúc Trí Việt cung cấp dịch vụ xin giấy phép xây dựng tại huyện Củ Chi cho các nhà đầu tư có nhu cầu xây dựng nhà ở, nhà xưởng, quán cafe…
Trí Việt sẽ giúp bạn xin các loại giấy phép xây dựng sau tại Củ Chi:

Hiện tại, việc xây dựng nhà ở trên đất tại Củ Chi đòi hỏi thửa đất phải đáp ứng hai yếu tố quan trọng: có thổ cư và thuộc quy hoạch chi tiết mới có thể được hoàn công. Tuy nhiên, đối với những thửa đất nằm trong khu dân cư nhưng không được quy hoạch là đất ở (dù có thổ cư), thì việc xin phép xây dựng sẽ gặp nhiều khó khăn hoặc chủ nhà phải cam kết tháo dỡ không đền bù.
Chính vì vậy, để tránh khỏi những nguy cơ đáng tiếc trước khi bắt đầu quá trình xây nhà, hãy liên hệ với chúng tôi để được tư vấn cặn kẽ nhất.
> Xem thêm: Dịch vụ xin lên thổ cư đất Củ Chi nhanh gọn. trọn gói
| Loại công trình | Diện tích xây dựng | Đơn giá |
| Nhà cấp 4 | <100m2 | 3.000.000đ |
| Nhà phố | <150m2 | 5.000.000đ |
| Nhà phố, Biệt thự | Từ 150m2 – 250m2 | 7.000.000đ |
| Nhà phố, Biệt thự | Từ 250m2 – 600m2 | 8.000.000đ |
| Công trình: khu công nghiệp, cafe, nhà trọ, khách sạn | Từ 50m2 trở lên | 30.000đ/1m2 |
Giá dịch vụ xin giấy phép xây dựng tại Củ Chi phụ thuộc vào nhiều yếu tố như diện tích xây dựng, loại công trình, nhu cầu xây dựng… Vì vậy, hãy liên hệ Kiến Trúc Trí Việt để được tư vấn và báo giá chính xác trong thời gian nhanh nhất!
Hoặc gọi điện để được tư vấn ngay lập tức
Để giúp các nhà đầu tư thực hiện xin giấy phép xây dựng trọn gói, chúng tôi sẽ thực hiện quy trình gồm 5 bước từ A-Z:

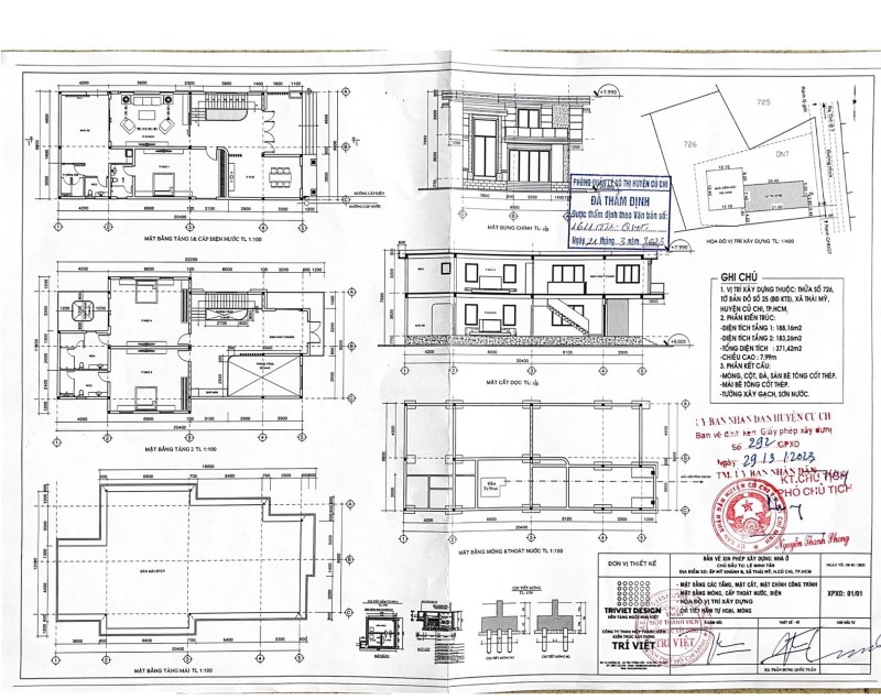
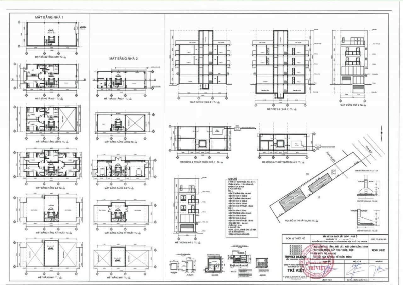
Hồ sơ xin giấy phép xây dựng tại huyện Củ Chi bao gồm khá nhiều tài liệu gồm: đơn xin cấp phép, bản sao chứng thực các giấy tờ, mặt bằng các tầng, mặt bằng công trình, bản vẽ thiết kế…
Tuy nhiên, khi sử dụng dịch vụ xin phép xây dựng của Kiến Trúc Trí Việt, bạn chỉ cần cung cấp thông tin để điền vào đơn xin cấp phép xây dựng và bản sao giấy tờ sở hữu nhà, đất. Các giấy tờ còn lại như bản vẽ thiết kế, bản vẽ mặt bằng sẽ do chúng tôi thực hiện từ A-Z.
Với hơn 20 năm kinh nghiệm, Kiến Trúc Trí Việt tự hào là một công ty cung cấp các dịch vụ nhà đất chuyên nghiệp tại Củ Chi với đội ngũ chuyên gia có kinh nghiệm và chuyên môn cao. Sự uy tín của chúng tôi đã được khẳng định qua từng năm hoạt động.
Kiến Trúc Trí Việt
Chuyên dịch vụ xin phép xây dựng tại huyện Củ Chi
Xin phép xây dựng tại huyện Củ Chi thường gặp phải nhiều khó khăn và rủi ro. Thủ tục hành chính phức tạp và thời gian kéo dài có thể gây ra nhiều phiền toái và chi phí không đáng có cho chủ đầu tư. Đó là lý do tại sao chúng tôi ở đây – để giúp bạn vượt qua mọi rào cản và đảm bảo quá trình xin phép diễn ra một cách suôn sẻ.
Đội ngũ chuyên gia của chúng tôi sẽ đồng hành cùng bạn trong suốt quá trình xin phép cho công trình. Chúng tôi cam kết đáp ứng mọi yêu cầu và thắc mắc của bạn một cách nhanh chóng và chuyên nghiệp. Sự hài lòng của khách hàng luôn là ưu tiên hàng đầu của chúng tôi.
Với kinh nghiệm lâu năm trong quy trình xin phép xây dựng tại Củ Chi, chúng tôi đảm bảo việc xin phép của bạn sẽ được thực hiện đúng quy định pháp luật. Chúng tôi sẽ kiểm tra và đảm bảo mọi tài liệu và hồ sơ liên quan đầy đủ và chính xác, giúp bạn tránh được các rủi ro phát sinh sau này.
Ngay sau nhận yêu cầu, chúng tôi sẽ liên lạc trong vòng 1 ngày. Các thủ tục được rút ngắn để tiết kiệm thời gian cho quý khách hàng. Sử dụng dịch vụ của chúng tôi sẽ giúp bạn tránh được những sai sót và vi phạm pháp lý có thể dẫn đến các khoản phạt hoặc chi phí đáng tiếc.






Một hồ sơ xin phép xây dựng hợp lệ phải bao gồm:
| Diện tích | Mật độ (%) | ||
| 50 | 100 | ||
| 75 | 90 | ||
| 100 | 80 | ||
| 200 | 70 | ||
| 300 | 60 | ||
| 500 | 50 | ||
| 1000 | 40 | ||
| Thổ cư > 1000m2 | Cứ 1000m2 thổ cư -> 400m2 xây dựng | ||
Nếu bạn không biết, hãy Alo: 0907131676 Kiến Trúc Trí Việt sẽ hỗ trợ trong 30 giây cho việc kiểm tra qui hoạch 1 thửa đất. Sau khi nhận thông tin số thửa, tờ bản đồ, chúng tôi sẽ gửi lại kết quả kiểm tra qui hoạch, ranh qui hoạch và khuyến mãi phần tính mật độ xin giấy phép xây dựng.
>> Ngoài ra, chúng tôi còn chuyên dịch vụ Lên thổ cư – Chuyển đổi mục đích sử dụng đất Củ Chi. Liên hệ ngay để biết thêm chi tiết!
Tiêu chuẩn bản vẽ thiết kế xây dựng:
Với chuyên môn thiết kế và xây dựng, Kiến Trúc Trí Việt sẽ giúp bạn thực hiện bản vẽ xin phép xây dựng đúng tiêu chuẩn với thời gian nhanh nhất.
Ưu đãi combo Thiết kế nhà + Xin phép xây dựng chỉ từ 10.000.000đ
Bộ hồ sơ xin cấp GPXD tại Củ Chi bao gồm:
Không phải ai cũng biết địa chỉ cơ quan quản lý xây dựng và chịu trách nhiệm cấp giấy phép xây dựng, đặc biệt là các nhà đầu tư và chủ dự án chưa có kinh nghiệm.
Đối với những công trình chuẩn bị được xây dựng ở huyện Củ Chi, gia chủ nên làm thủ tục xin giấy phép xây dựng tại Ủy ban nhân dân huyện Củ Chi.

Lệ phí xin phép xây dựng ở mỗi quận, huyện sẽ có sự khác nhau vì điều này được hội đồng nhân dân quyết định. Tại huyện Củ Chi, lệ phí xin phép xây dựng là 75.000 VND/giấy phép. Lệ phí trên chưa bao gồm chi phí để thực hiện các thủ tục và chuẩn bị giấy tờ cần thiết trong hồ sơ.
Thời gian này phụ thuộc vào loại hình công trình xây dựng mà bạn xin cấp phép.


Sau 15 ngày làm việc kể từ ngày nhận đủ hồ sơ hợp lệ, nếu hồ sơ xin cấp phép xây dựng của chủ đầu tư bị từ chối thì phòng tài nguyên và môi trường Củ Chi sẽ thông báo đến chủ đầu tư bằng văn bản.
Các lý do không được cấp phép thường gặp nhất là đất dính quy hoạch công cộng hoặc không nằm trong quy hoạch chi tiết.

Để tránh trường hợp hồ sơ bị từ chối hoặc tốn nhiều thời gian để thực hiện hồ sơ, các bạn cần lưu ý những điều sau khi xin phép xây dựng huyện Củ Chi:
Thủ tục xin giấy phép xây dựng sẽ mất nhiều thời gian cũng như sẽ tốn công sức nếu bạn chưa có kinh nghiệm đối với lĩnh vực này. Vì vậy, bạn có thể chọn lựa dịch vụ xin giấy phép xây dựng Củ Chi do Kiến Trúc Trí Việt cung cấp để được cấp phép xây dựng nhanh chóng và tiện lợi với mức giá vô cùng hợp lý.
Trên đây, Kiến Trúc Trí Việt đã gửi đến các bạn những thông tin cần biết về dịch vụ xin giấy phép xây dựng tại huyện Củ Chi. Nếu có thắc mắc gì về việc xin giấy phép xây dựng Củ Chi, bạn hãy liên hệ ngay đến Kiến Trúc Trí Việt. Chúng tôi luôn sẵn sàng hỗ trợ quý khách hàng về các vấn đề nhà đất tại Củ Chi!

>> Xem ngay: Các dự án xây nhà Củ Chi của Kiến Trúc Trí Việt