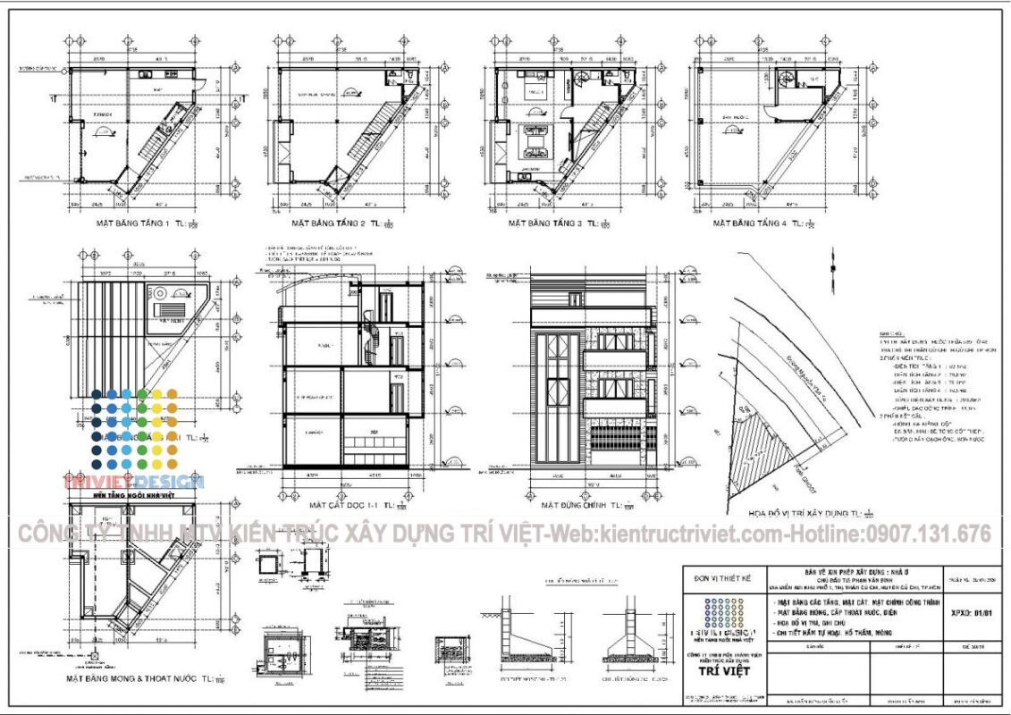
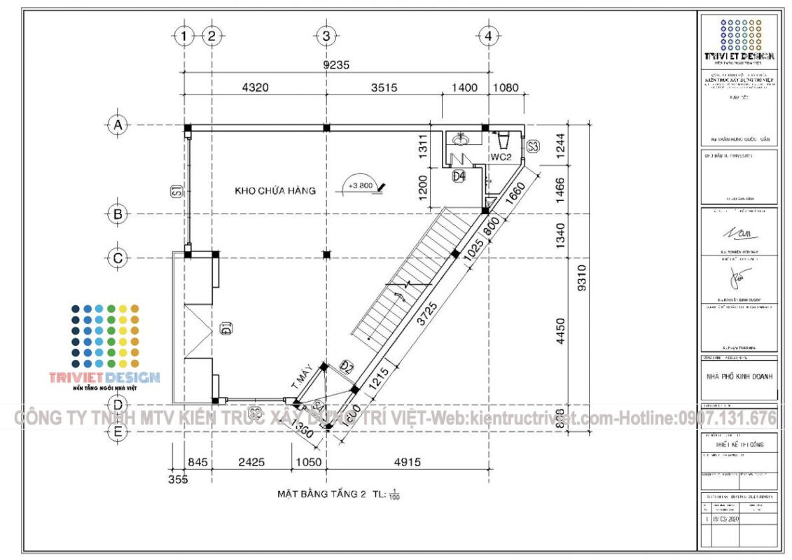
SHOPHOUSE TRÊN MẢNH ĐẤT TAM GIÁC

– CHỦ ĐẦU TƯ: NGUYỄN VĂN BÌNH
– ĐỊA ĐIỂM: ĐƯỜNG NGUYỄN VĂN XƠ, KHU PHỐ 1, TT. CỦ CHI, HUYỆN CỦ CHI, TP. HCM
– TỔNG NGÂN SÁCH ĐẦU TƯ: 2.5 TỶ
– QUY MÔ: 60 MÉT VUÔNG, 01 TRỆT, 03 LẦU
– NỘI DUNG THỰC HIỆN: THIẾT KẾ VÀ XÂY DỰNG SHOPHOUSE
– PHÍ THIẾT KẾ VÀ XD: LIÊN HỆ 0907.131.676

Yêu Cầu Tư Vấn