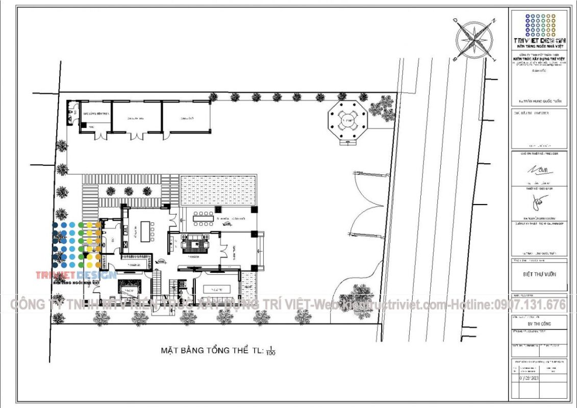
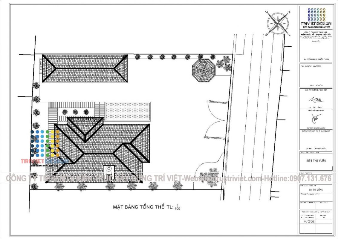
Công trình biệt thự vườn 01 trệt 01 lầu tọa lạc trên mảnh đất rộng hơn 233 mét vuông, trong đó 1/3 khu đất để xây dựng biệt thự, diện tích còn lại để bố trí sân vườn, khu bàn ghế thư giãn và nơi đậu xe. Ngoài ra, bên hông nhà còn có thêm 1 hồ bơi nhỏ để phục vụ nhu cầu thể thao của các thành viên trong gia đình.
Ảnh phối cảnh 3D

Bản vẽ xây dựng
























