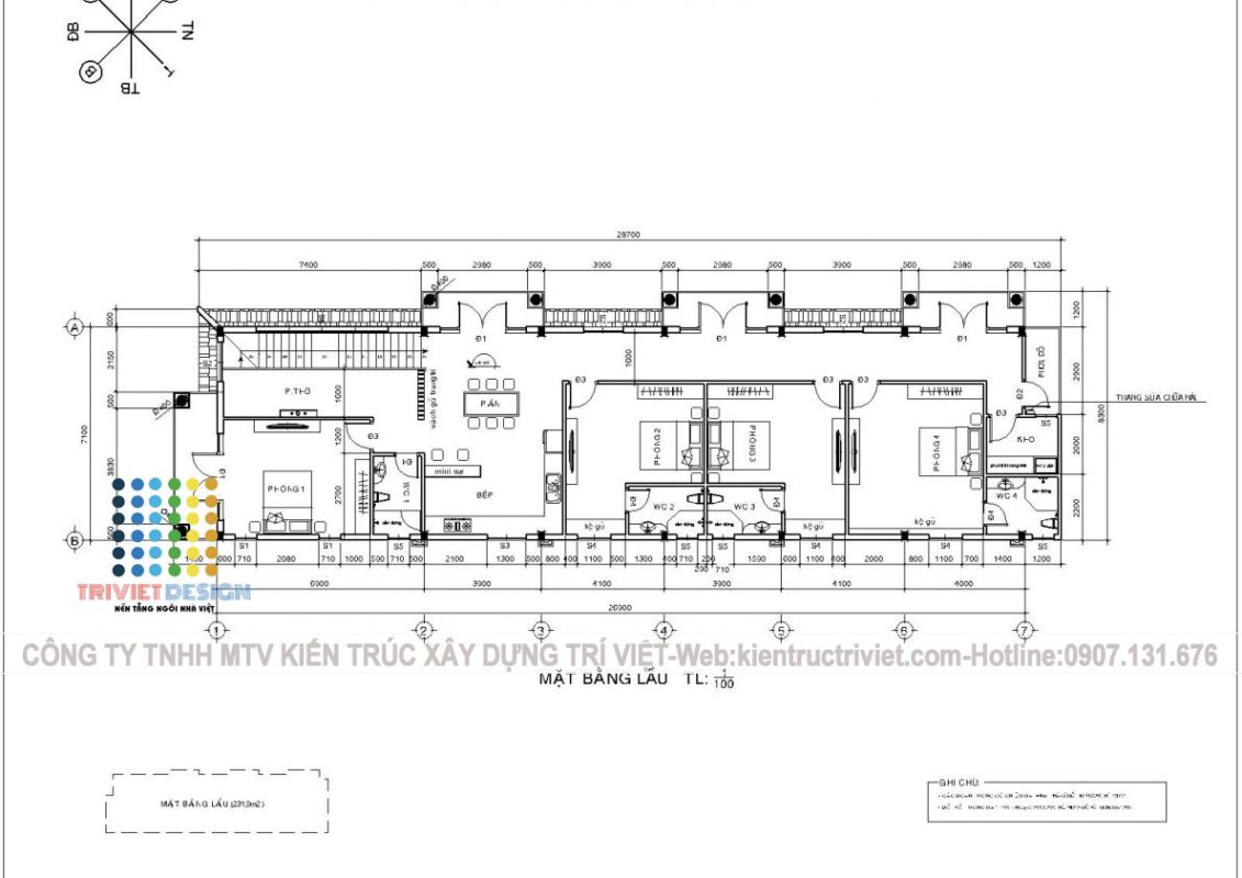
Yêu cầu của gia chủ là thiết kế một căn nhà phố liền kề cho thuê, với tầng 1 chia làm 5 căn cho thuê có WC và bếp khép kín, lối đi tách biệt với nhà chính. Khu sinh hoạt của gia đình sẽ có lối đi riêng. Dựa theo yêu cầu ấy, các kiến trúc sư đã thiết kế như sau:
-
- Tầng trệt: 01 phòng khách + 05 căn hộ cho thuê;
- Lầu 1: 04 phòng ngủ, 04 WC, kho, phòng thờ, sân phơi

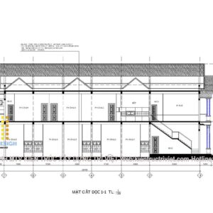
Bản vẽ thiết kế kiến trúc



























