Dự án biệt thự vườn Củ Chi do công ty Kiến Trúc Trí Việt thực hiện, nổi bật với sự sang trọng và chất lượng cao cấp. Với lợi thế diện tích mảnh đất rộng, hơn 300 mét vuông, các kĩ sư của Kiến Trúc Trí Việt quyết định lên phương án thiết kế và xây dựng căn biệt thự vườn này tại Củ Chi như sau:
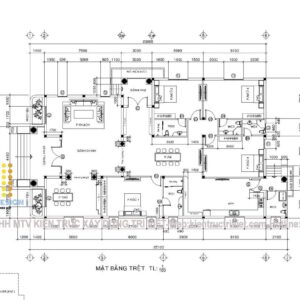
- 1 trệt với đầy đủ công năng: phòng khách, phòng thờ, nhà bếp, phòng ăn, 4 phòng ngủ, 5 WC, sân phơi
- Ngoài diện tích xây dựng, còn lại là khoảng vườn rộng rãi để gia chủ trang trí mảng xanh và bàn ghế thư giãn
- Xây dựng hàng rào bao xung quanh biệt thự
- Thảm mặt đường trước nhà
Bố cục gồm 04 phòng ngủ và 05 phòng tắm, dự án được thiết kế với tinh thần kết hợp tối đa giữa kiến trúc và thiên nhiên.
Một trong những điểm độc đáo của công trình là sử dụng màu sắc xanh và xám làm chủ đạo cho toàn bộ kiến trúc. Màu xanh tượng trưng cho màu của thiên nhiên và sự tươi mới, tạo ra một không gian sống tươi mới và trong lành. Màu xám được sử dụng để làm nền tảng cho toàn bộ kiến trúc, tạo ra một không gian trang nhã và thanh lịch.
Công trình được thiết kế với nhiều chi tiết đặc biệt, bao gồm cửa sổ lớn để tận dụng ánh sáng và gió tự nhiên, đồng thời tạo ra một không gian sống thoáng đãng và rộng rãi. Mái thái được thiết kế mở rộng ra ngoài để tận dụng được không gian bên ngoài và tạo ra một không gian sống thư giãn ngoài trời.
Tổng thể dự án phát triển theo phong cách hiện đại và tiên tiến, thể hiện rõ sự tinh tế và khéo léo của các kiến trúc sư. Với các thiết kế độc đáo và sự kết hợp màu sắc sáng tạo, dự án biệt thự vườn trệt tại Củ Chi của công ty Kiến Trúc Trí Việt đã tạo ra một không gian sống độc đáo và tiên tiến, mang lại sự thoải mái và hài hòa với thiên nhiên cho gia chủ.
Ảnh phối cảnh

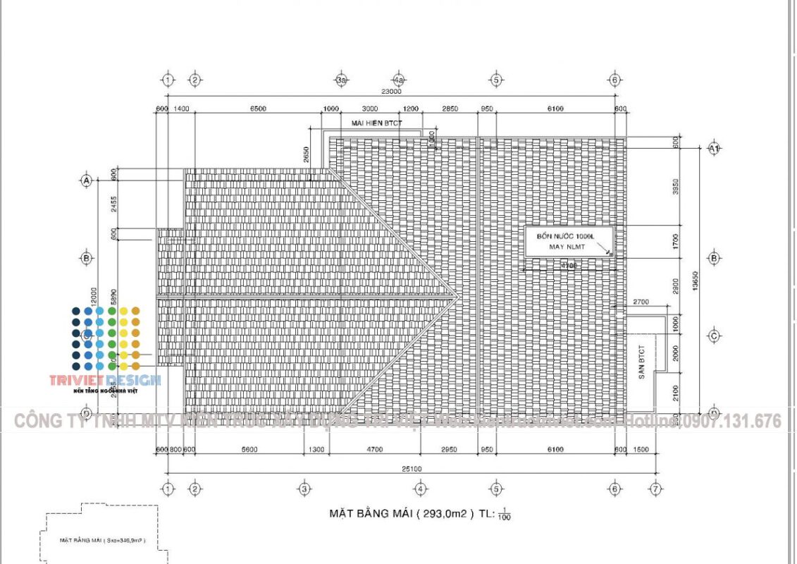
Bản vẽ xây dựng

Ảnh thực tế






































