





YÊU CẦU TƯ VẤN
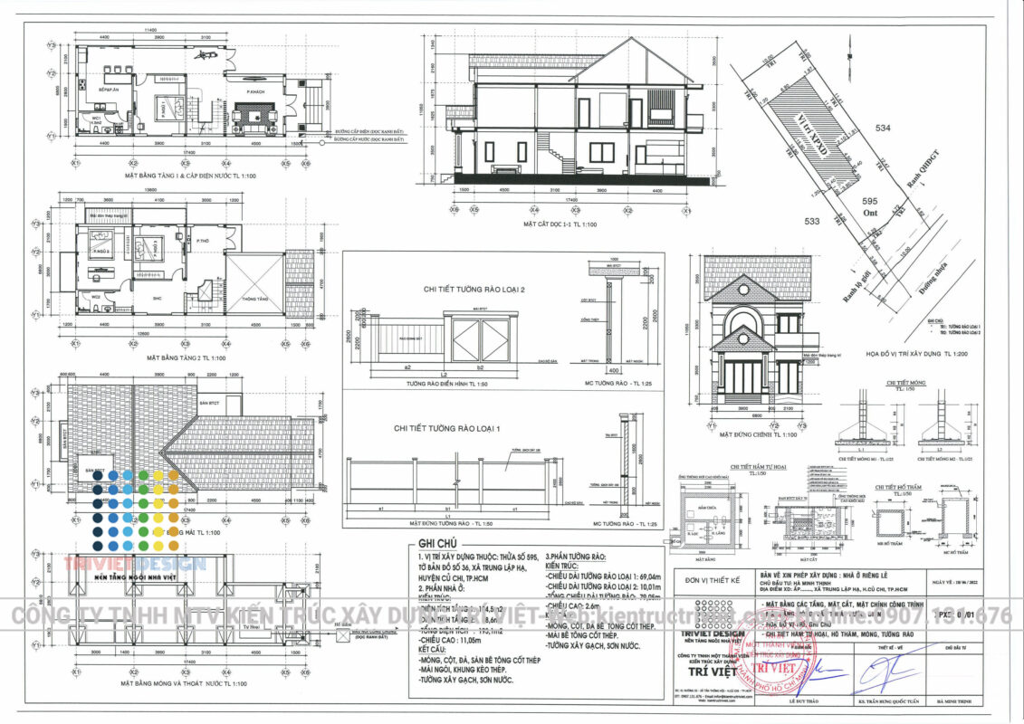
– CHỦ ĐẦU TƯ: HÀ MINH THỊNH
– ĐỊA ĐIỂM: XÃ TRUNG LẬP HẠ – HUYỆN CỦ CHI
– TỔNG NGÂN SÁCH ĐẦU TƯ: 1.95 TỶ
– QUY MÔ: 180m2; 01 trệt (5~6.5x18m): 105m2; 01 tầng lửng (5x14m): 75m2; gồm 03 phòng ngủ, 03 WC, 01 phòng khách, 01 bếp, gara, phòng thờ
– CHI TIẾT DỰ ÁN: Thiết kế và thi công xây dựng Nhà biệt thự mái thái trọn gói
– CHI PHÍ THIẾT KẾ VÀ XD: LIÊN HỆ 0907.131.676
YÊU CẦU TƯ VẤN