Phối cảnh 3D
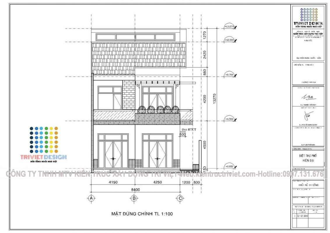
Căn nhà được thiết kế với tông màu trắng làm chủ đạo, kết hợp với mái ngói đen tạo cảm giác hiện đại, sạch sẽ. Điểm đặc biệt của căn nhà phố 1 trệt 1 lầu có gác mái hiện đại này chính là hệ thống cửa sổ kính, lấy gió và lấy sáng cho khắp căn nhà. Khoảng ban công được thiết kế rộng rãi, thích hợp để gia chủ thư giãn sau những giây phút làm việc mệt mỏi.

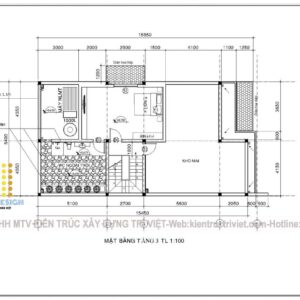
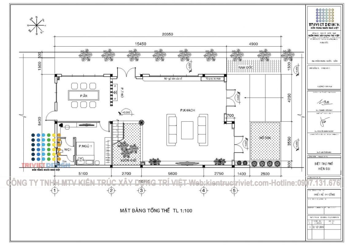
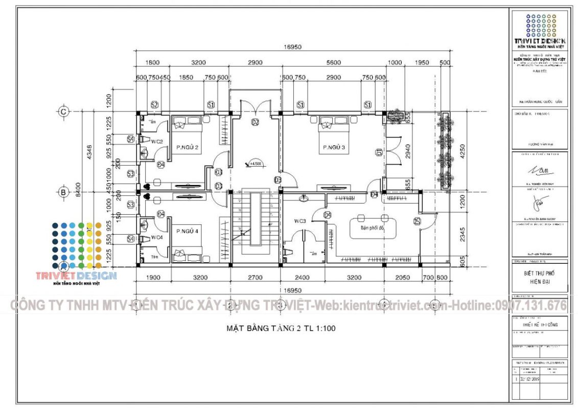
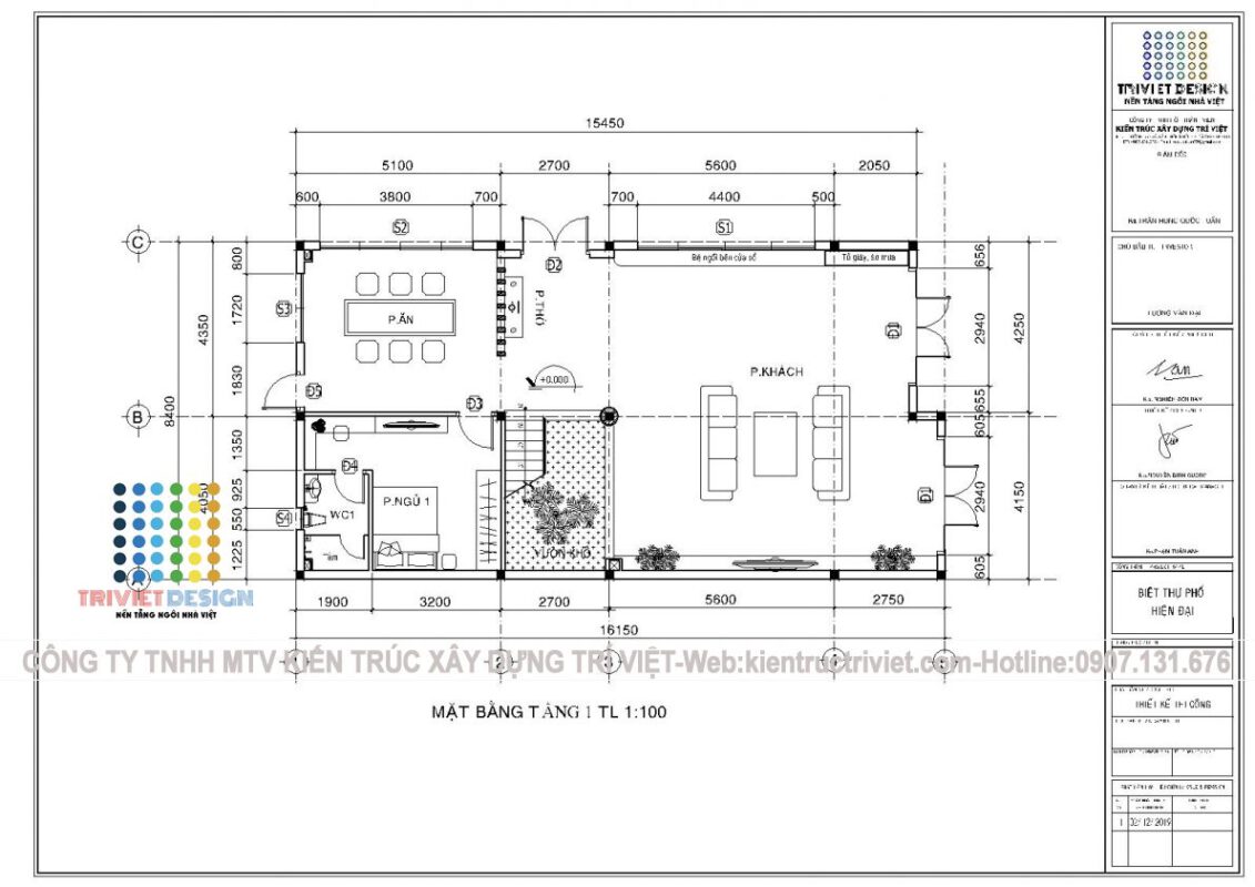
Bản vẽ xây dựng
Dưới đây là bản vẽ xây dựng chi tiết của công trình nhà phố hiện đại 1 trệt 1 lầu có gác mái:
- Tầng trệt: Sân trước là nơi đậu xe, bên hông hiên nhà được bố trí hồ sen tiểu cảnh. Tầng trệt gồm có 1 phòng ngủ, 1 phòng thờ, phòng ăn và phòng khách
- Tầng 1: Gồm 3 phòng ngủ, 3 WC
- Tầng gác mái: 1 phòng ngủ, WC ngoài trời và kho mái


























