Sở hữu một mảnh đất không vuông vức, đặc biệt là mảnh đất tam giác luôn là điều khiến nhiều gia chủ lo lắng vì những khó khăn có thể gặp phải khi thiết kế và xây dựng. Bài toán hôm nay mà Kiến trúc Trí Việt nhận được chính là thiết kế và thi công xây dựng căn Shophouse trên mảnh đất tam giác với diện tích hơn 60 mét vuông tại Củ Chi.
ẢNH PHỐI CẢNH



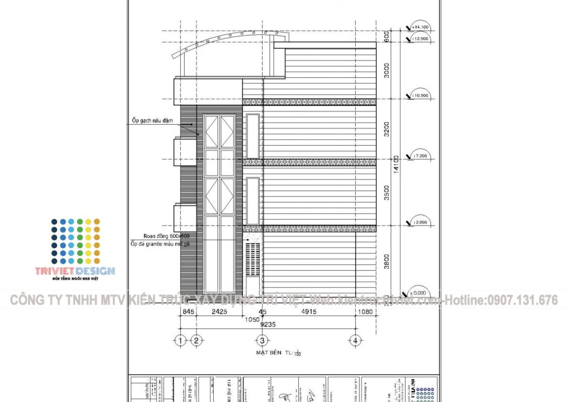
BẢN VẼ XÂY DỰNG

TÓM TẮT CÔNG TRÌNH
- Diện tích XD: 60m2, tổng diện tích sàn: 240m2, có thang máy tải hàng.
- Tầng trệt: Kinh doanh
- Lầu 1: Kho chứa hàng + showroom
- Lầu 2: Bếp + phòng ngủ;
- Lầu 3: Kho + sân thượng; 2WC





























