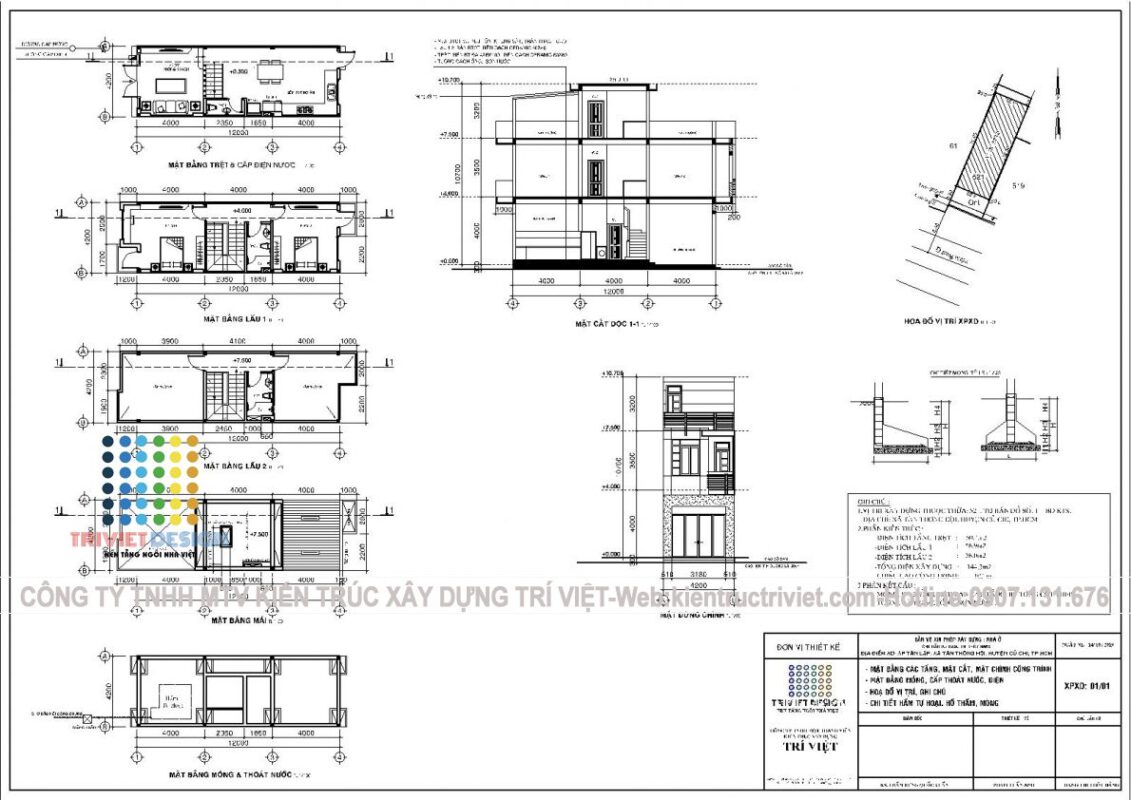
Thiết kế mẫu nhà ống 4x12m đẹp, phù hợp với gia đình 2 thế hệ và khắc phục hạn chế về diện tích là yêu cầu của gia chủ dành cho kiến trúc sư của Kiến Trúc Trí Việt. Sau khi khảo sát hiện trạng, kiến trúc sư đã lên ý tưởng xây dựng nhà phố 4x12m có quy mô 1 trệt, 2 lầu, bố trí các phòng công năng như sau:
- Tầng trệt: Phòng khách, bếp và bàn ăn, 1 WC
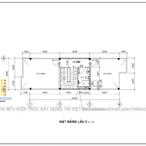
- Tầng 1: 2 phòng ngủ, 1 WC
- Tầng 2: Sân thượng trước và sau
Căn nhà lấy tông màu trắng, ghi làm chủ đạo, điểm thêm mảng tường đỏ ấn tượng, phù hợp với bản mệnh của gia chủ. Các phòng ngủ đều có cửa sổ và ban công, đảm bảo đủ sáng và thoáng khí.

Bản vẽ xây dựng



























