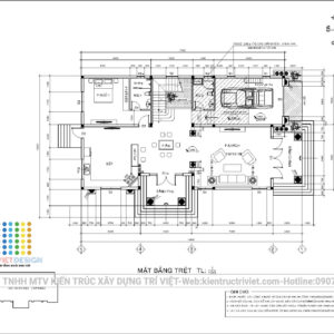
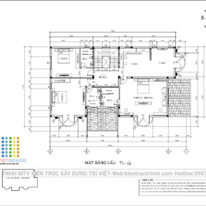
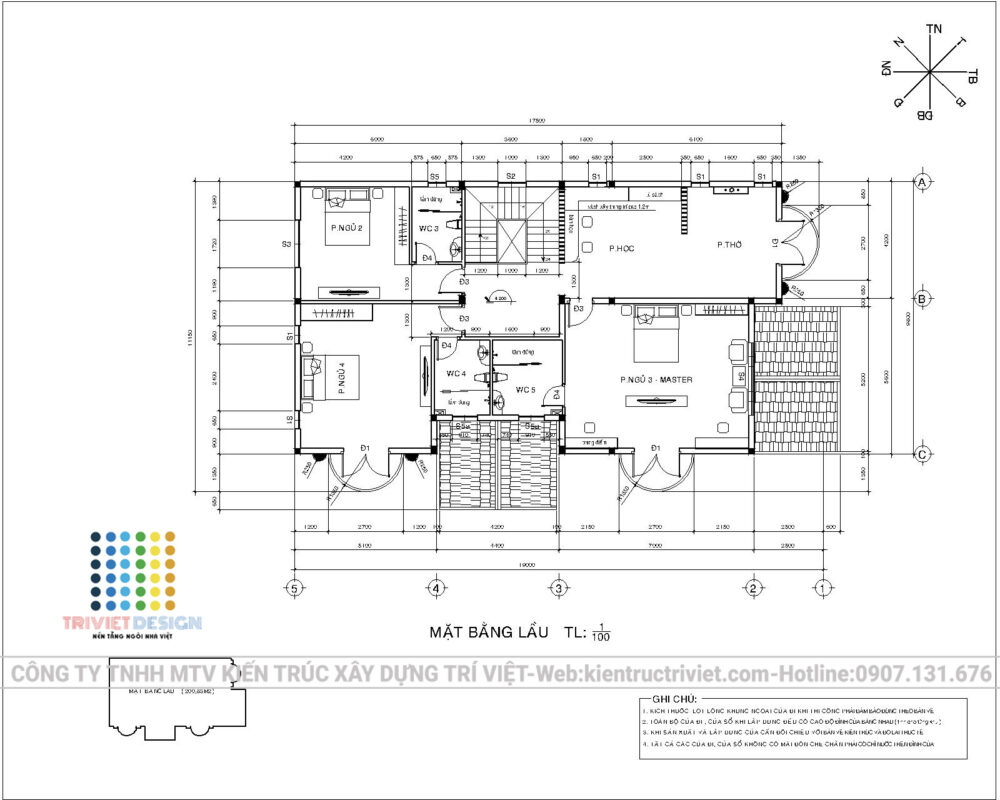
Đây là công trình biệt thự vườn 01 lầu có gác mái do Kiến Trúc Trí Việt thực hiện cho anh Tâm tại Củ Chi vào năm 2019. Biệt thự rộng 182,4m2; chi tiết bố trí chức năng các tầng như sau:
- Tầng trệt: Phòng ngủ 1 cho ông bà, Phòng ăn, Bếp, Phòng khách và Gara, 2 WC
- Tầng 01: Phòng ngủ master, 2 phòng ngủ cho con, Phòng thờ và Khu bàn học, 3WC





























