





YÊU CẦU TƯ VẤN
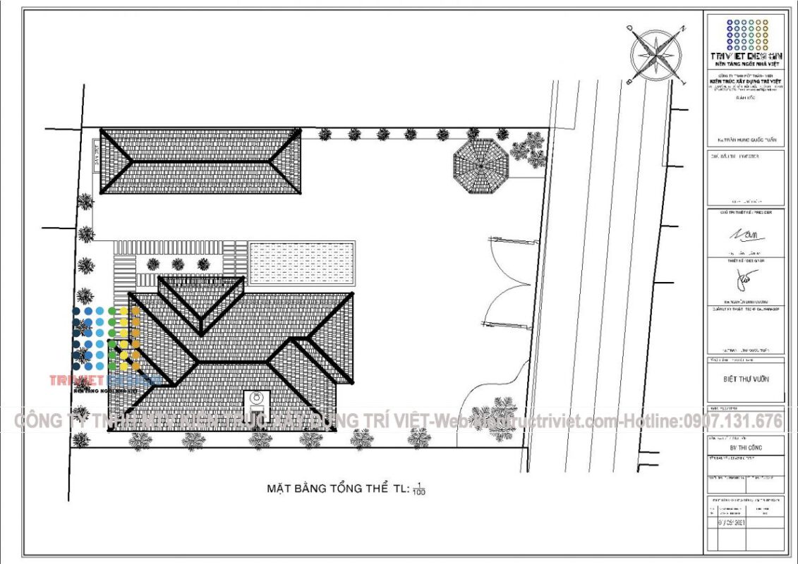
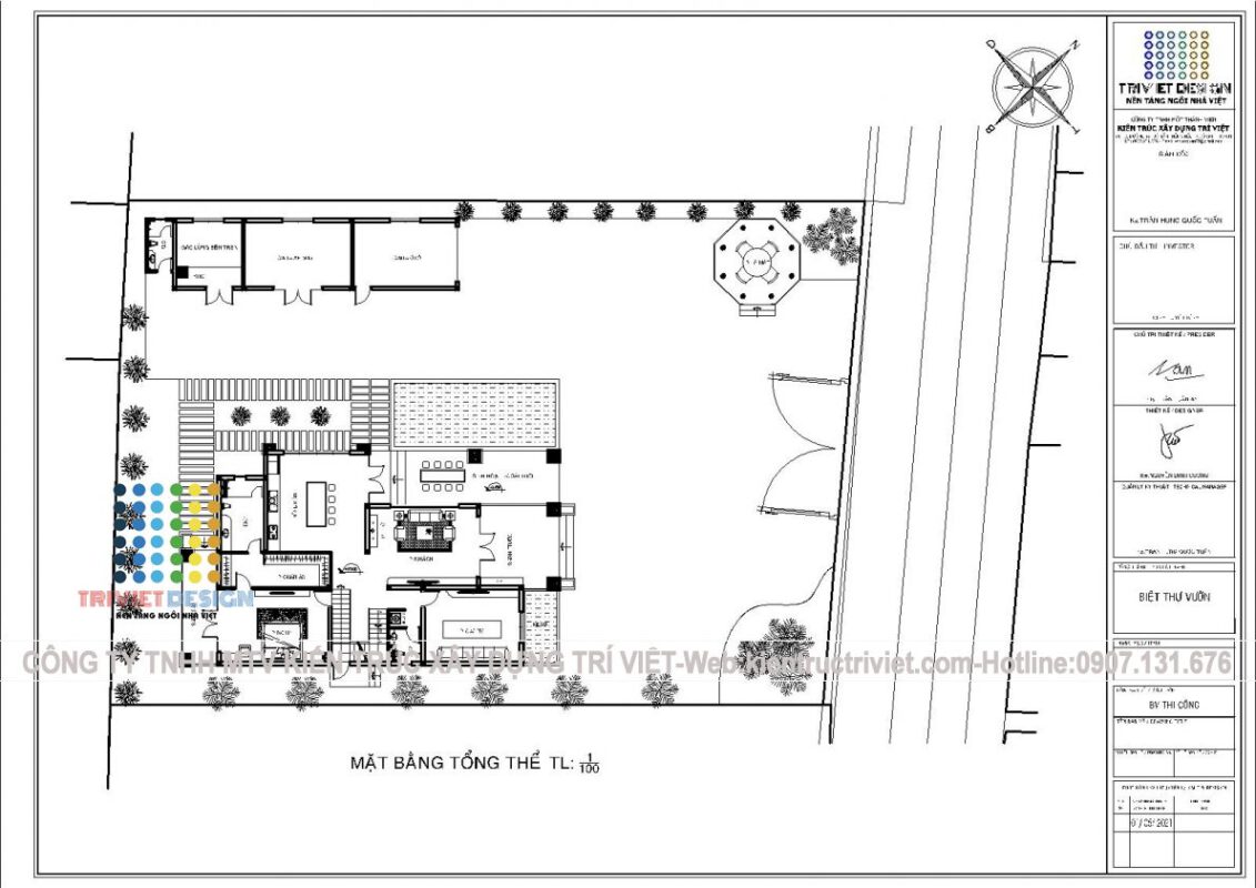
– VỊ TRÍ XÂY DỰNG: Xã Thái Mỹ, Huyện Củ Chi, TP. HCM
– THỜI GIAN XÂY DỰNG: 2022
– NỘI DUNG DỰ ÁN: Thiết kế phối cảnh và xây dựng trọn gói
– QUY MÔ: 30x20m, 1 trệt, 1 lầu, biệt thự nhà vườn có hồ bơi
– CHI PHÍ THỰC HIỆN: Liên hệ 0907.131.676
YÊU CẦU TƯ VẤN