Chi tiết dự án
Xây dựng biệt thự phố 1 trệt 1 lầu mái thái hiện đại với diện tích 100 mét vuông tốn bao nhiêu chi phí? Hãy cùng tìm hiểu qua dự án sau của Kiến Trúc Trí Việt.
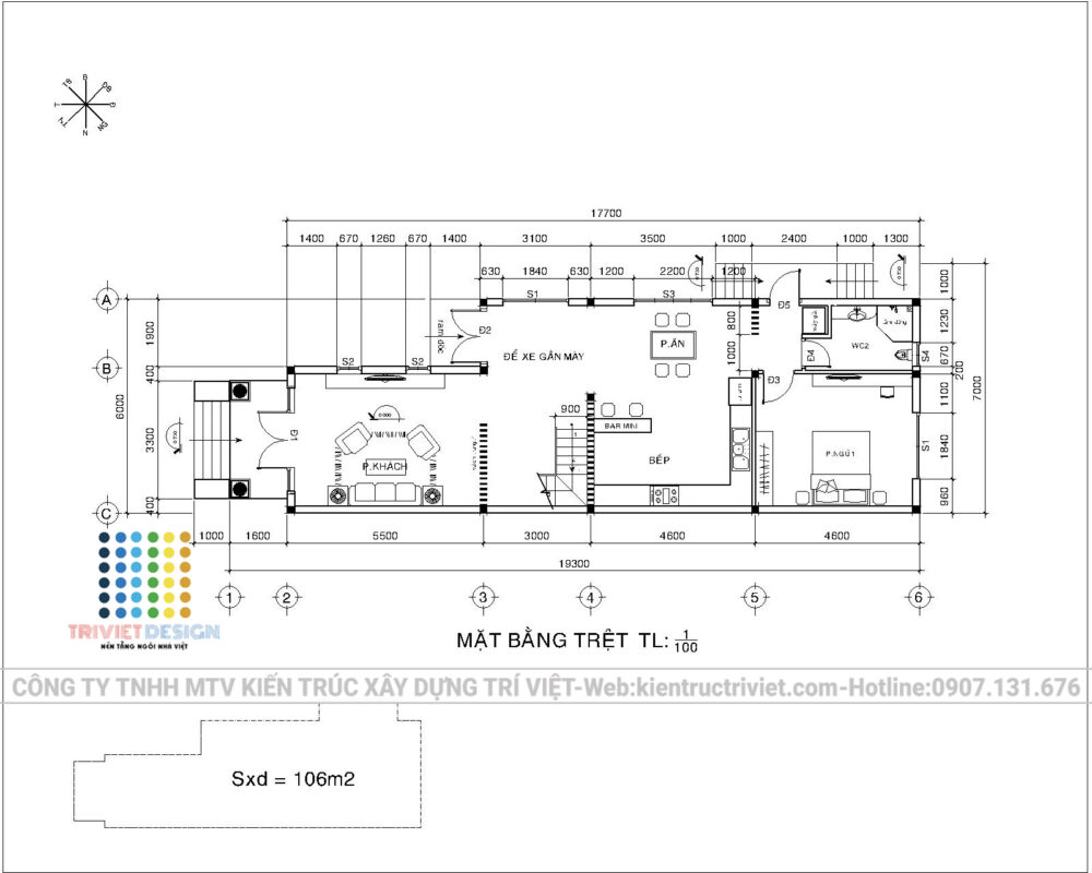
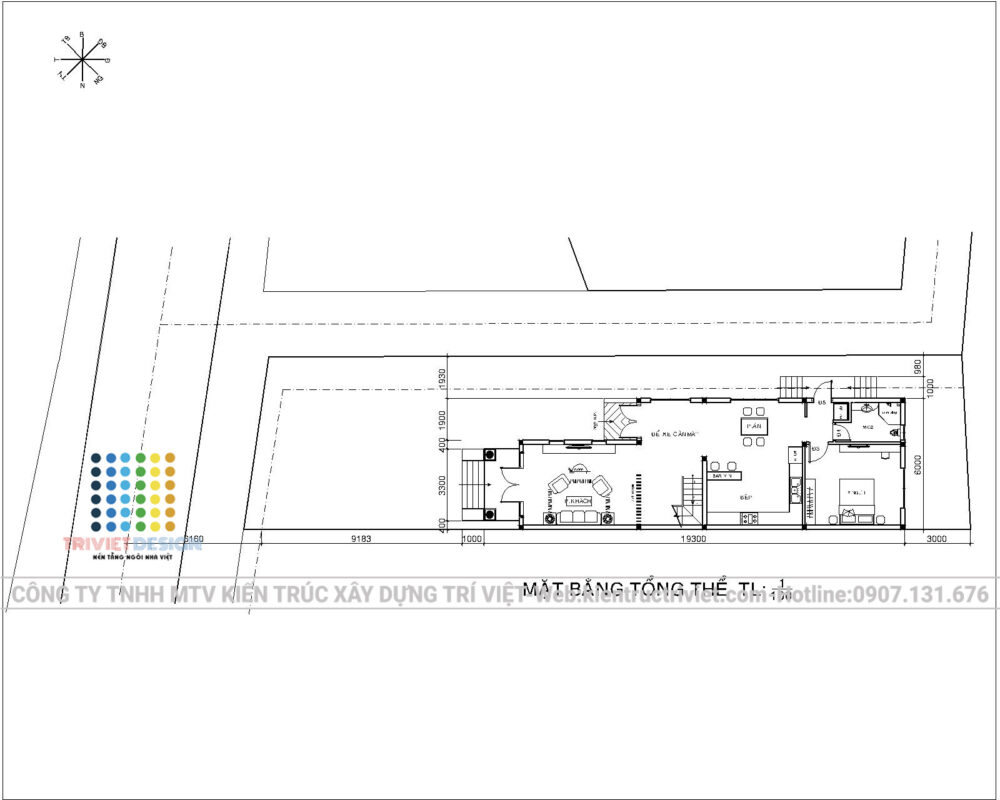
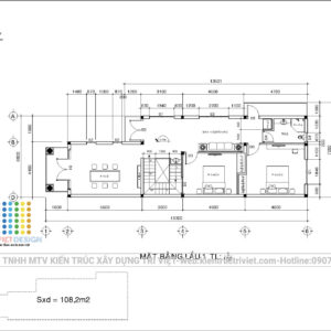
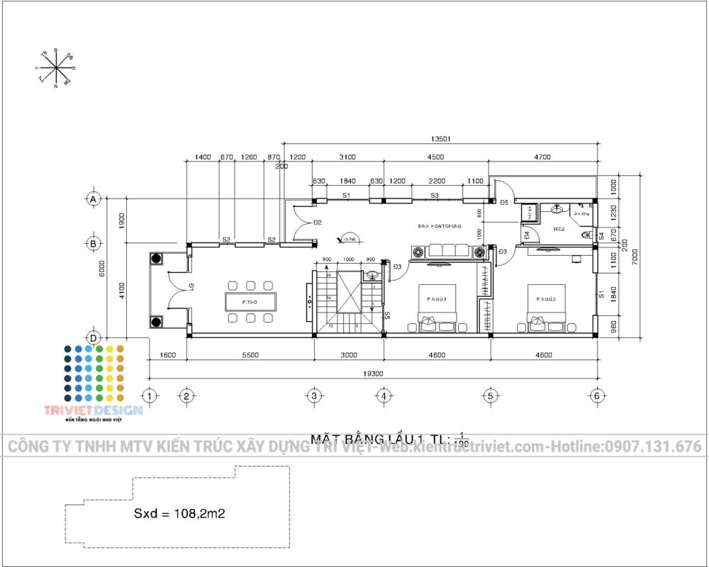
Sau khi khảo sát hiện trang, mảnh đất của chị Nhi có diện tích xây dựng là 106 mét vuông. Với yêu cầu xây dựng một căn biệt thự hiện đại, có đủ công năng sử dụng cho gia đình 3 thế hệ, các kiến trúc sư đã lên ý tưởng xây dựng biệt thự phố 1 lầu 1 trệt. Tầng trệt được bố trí phòng khách, bếp, 1 phòng ngủ cho ông bà và 1 WC. Tầng lầu gồm 2 phòng ngủ, 1 WC và phòng thờ.
Công năng của các không gian trong biệt thự được thiết kế hợp lý và tiện nghi. Phòng khách được bố trí với nhiều không gian trống để tạo ra cảm giác thoải mái, còn phòng bếp được trang bị đầy đủ các thiết bị hiện đại như bếp từ, tủ lạnh, lò nướng, máy hút mùi. Ba phòng ngủ được thiết kế theo phong cách hiện đại và đầy đủ tiện nghi, mang đến không gian nghỉ ngơi thoải mái cho cả gia đình.
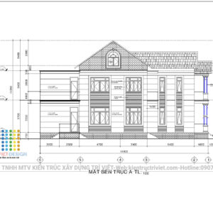
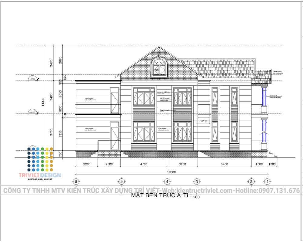
Ý tưởng thiết kế của biệt thự phố 1 trệt 1 lầu là kết hợp giữa phong cách hiện đại và truyền thống. Màu sắc chủ đạo của căn biệt thự là màu xanh – xám, mang đến phong cách hài hòa nhưng không kém phần hiện đại cho ngôi biệt thự phố này. Điểm đặc biệt của biệt thự phố này là cách sử dụng ánh sáng tự nhiên và không gian mở để tạo ra cảm giác rộng rãi và thoáng mát. Ngoài ra, không gian vườn được thiết kế hài hòa với kiến trúc của ngôi nhà, mang đến không gian sống gần gũi với thiên nhiên.
Về mặt chi phí, biệt thự phố 1 trệt 1 lầu có mức đầu tư khá hợp lý với mức giá 2.8 tỷ đồng, tương đối tiết kiệm so với nhiều biệt thự phố tương tự khác trên thị trường.
Bản vẽ phối cảnh và bản vẽ xây dựng





Kiến Trúc Trí Việt là một đơn vị thiết kế kiến trúc uy tín và chuyên nghiệp, với nhiều năm kinh nghiệm trong lĩnh vực thiết kế kiến trúc. Điểm mạnh của Kiến Trúc Trí Việt là khả năng thiết kế theo yêu cầu của khách hàng và tư vấn cho khách hàng giải pháp thiết kế phù hợp với nhu cầu sử dụng và ngân sách của từng khách hàng.
Nếu bạn đang có nhu cầu xây nhà biệt thự phố và muốn được tư vấn miễn phí về các giải pháp thiết kế, chi phí và tiến độ thực hiện, hãy liên hệ với Kiến Trúc Trí Việt ngay hôm nay để được hỗ trợ tốt nhất.



















