
YÊU CẦU TƯ VẤN
– Chủ đầu tư: LƯƠNG QUỐC DŨNG
– Địa điểm xây dựng: Tp. Tân An, Tỉnh Long An
– Thời gian: Tháng 7/2018
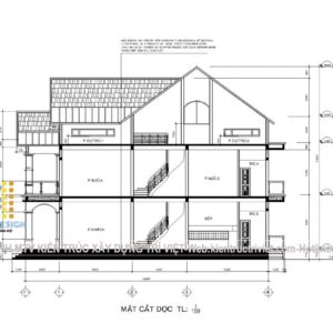
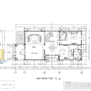
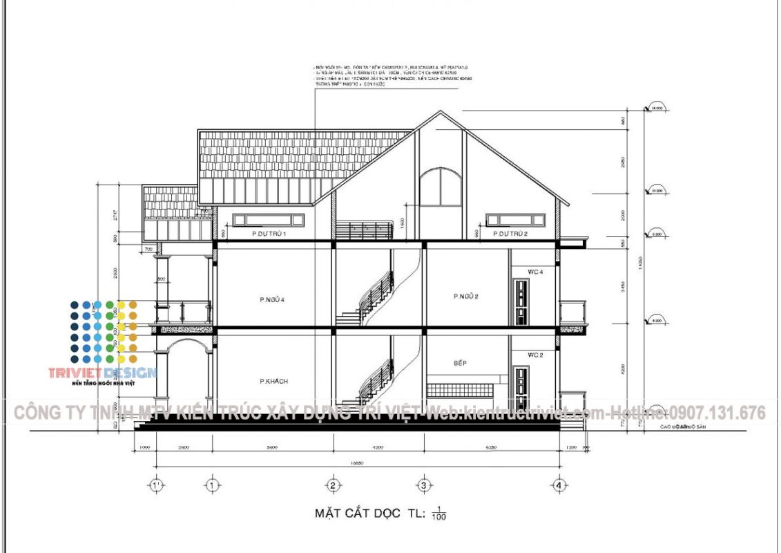
– Qui mô: 8x20m, 04 phòng ngủ, 4WC, 01 phòng thờ
– Tổng mức đầu tư: 3.8 Tỷ
– Nội dung dự án: Xây dựng nhà biệt thự phố trọn gói
YÊU CẦU TƯ VẤN