Nếu đang sở hữu một mảnh đất có chiều dài lớn, hãy tham khảo ngay ý tưởng thiết kế nhà phố 4x19m này của Kiến Trúc Trí Việt nhé! Tận dụng lợi thế căn nhà nằm trên mảnh đất có chiều dài đến 19m, các kiến trúc sư của Kiến Trúc Trí Việt đã bố trí các phòng chức năng một cách hợp lý theo chiều dài của ngôi nhà.
Khoảng sân trước được thiết kế sân để xe rộng rãi, có mảng xanh trong sân và ban công, góp phần giúp ngăn cách không gian ngôi nhà 4x19m khỏi ồn ào và khói bụi. Tông màu chủ đạo trắng, xám, ghi, mang đến cảm giác hiện đại nhưng không hề nhàm chán.
Phối cảnh 3D

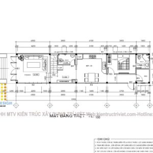
Bản vẽ xây dựng
Căn nhà được thiết kế gồm 1 trệt, 1 lầu, với 3 phòng ngủ, có giếng trời lấy gió và ánh sáng, khắc phục nhược điểm của nhà phố 4x19m.




















