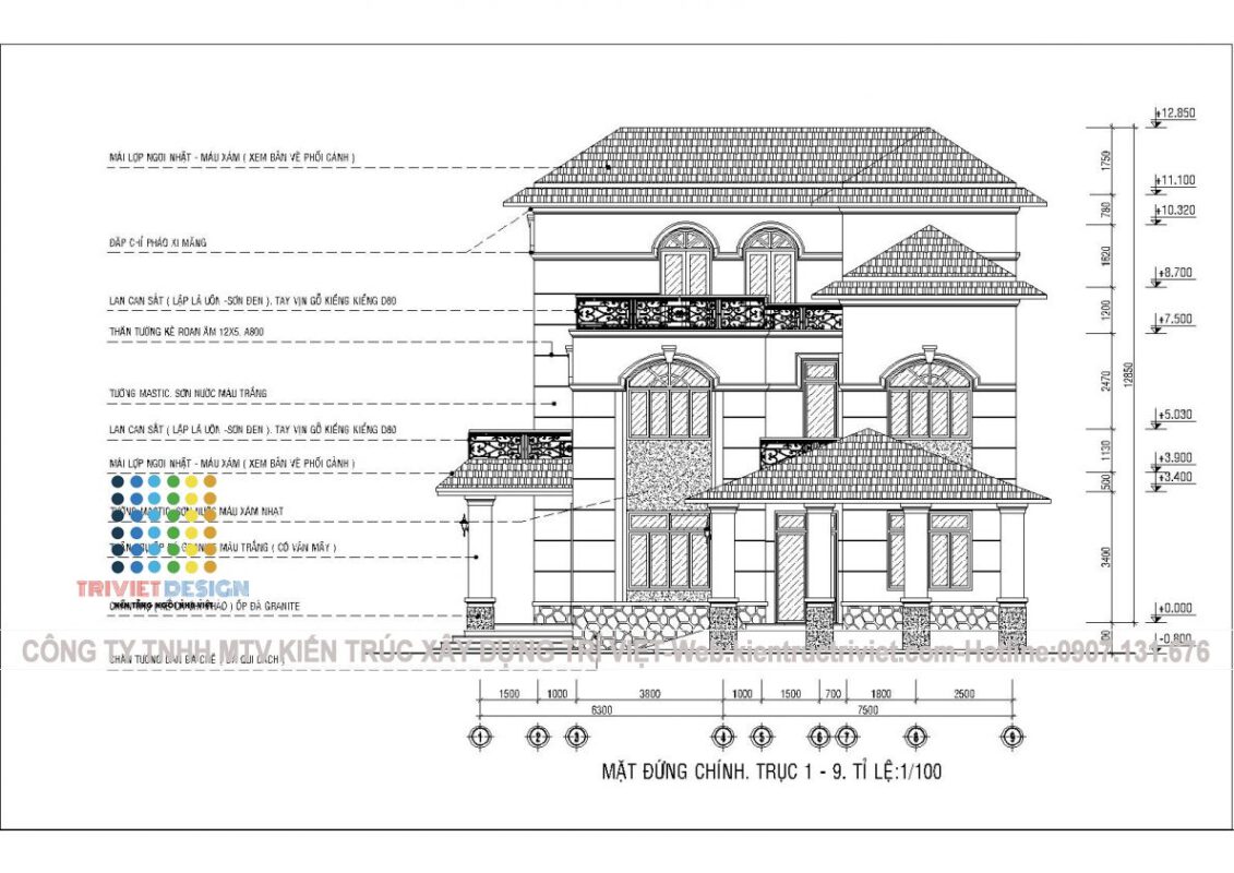
Căn biệt thự vườn 3 tầng (01 trệt 02 lầu) mái Nhật được Kiến Trúc Trí Việt thực hiện cho gia đình anh Lợi tại Củ Chi vào năm 2020. Biệt thự được thiết kế với phong cách hiện đại nhưng không kém phần sang trọng, với hệ thống cửa sổ và ban công được bố trí hợp lý, giúp căn nhà luôn ngập tràn ánh sáng và không khí trong lành. Gara bên hông nhà được thiết kế rộng rãi, có thể chứa được 2 chiếc xe ô tô. Dưới đây là bố trí công năng chi tiết của dự án biệt thự vườn 01 trệt 02 lầu mái Nhật:
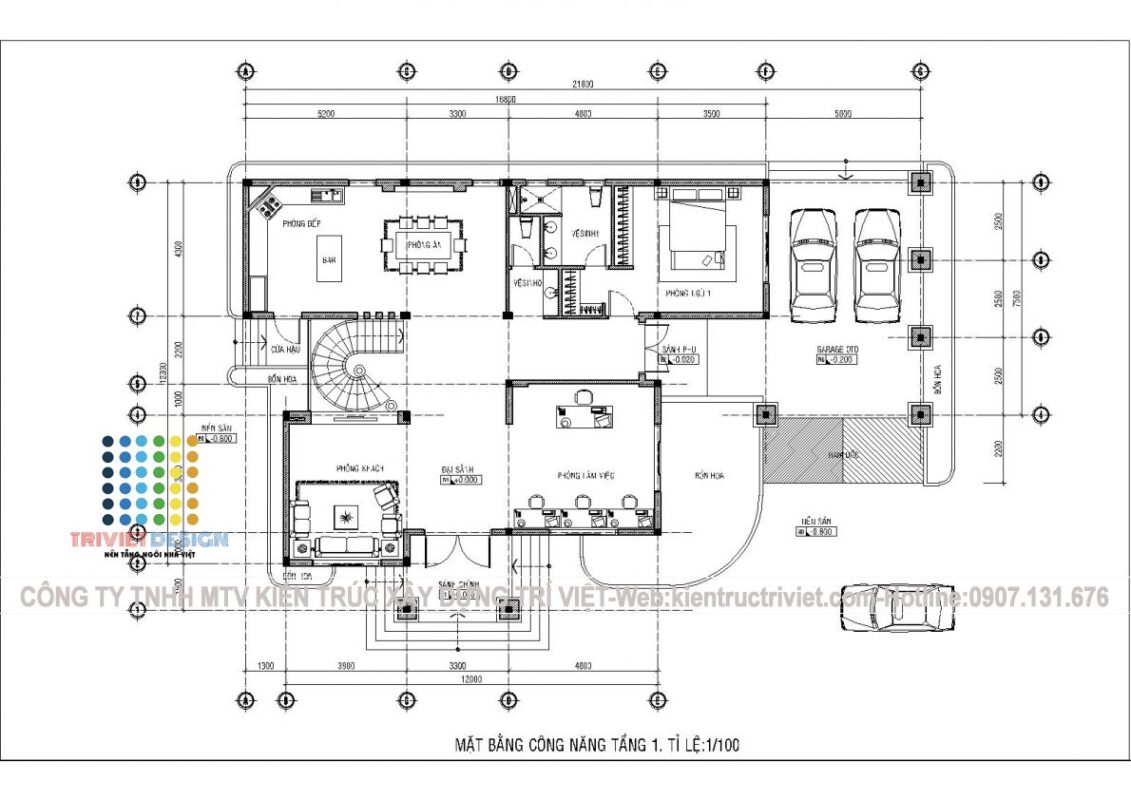
- Tầng 1: Gồm 1 phòng ngủ, 1 WC, phòng khách, bếp, phòng làm việc
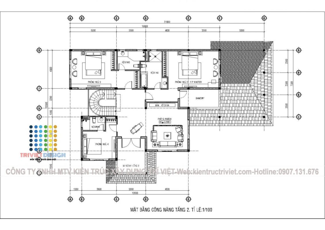
- Tầng 2: Gồm 3 phòng ngủ, 3 WC, khu sinh hoạt chung
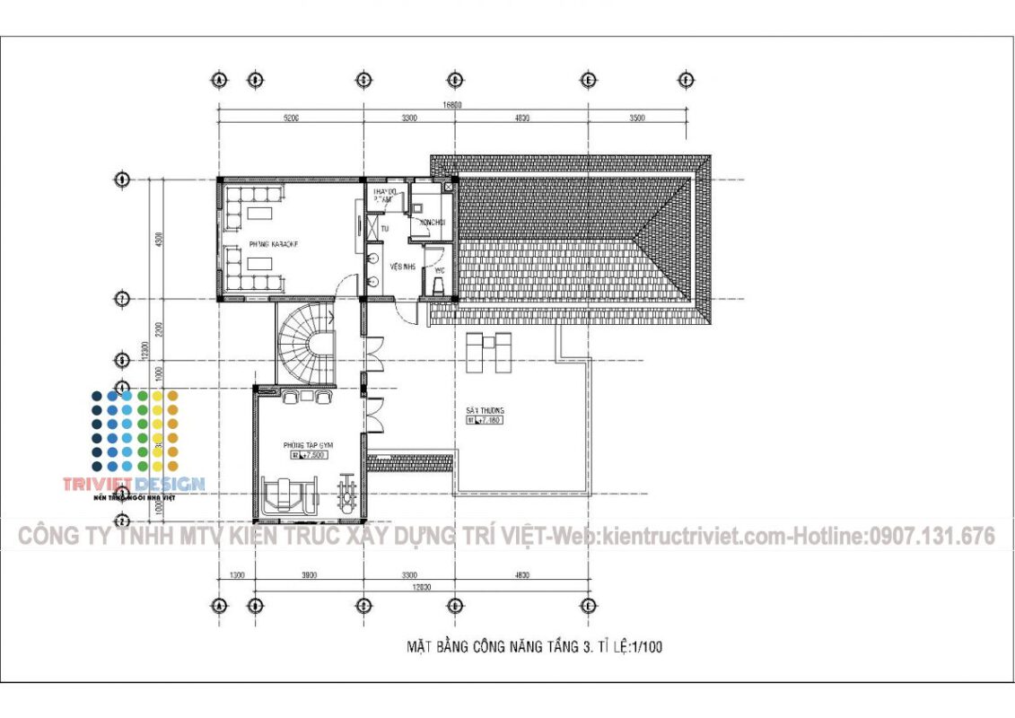
- Tầng 3: Sân thượng, phòng tập gym, phòng khách phụ, 1 WC
Ảnh phối cảnh 3D



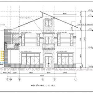
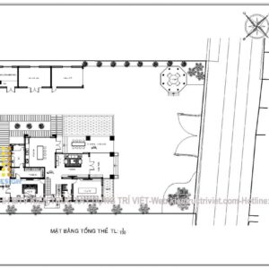
Bản vẽ xây dựng



Bản vẽ mặt bằng công năng






























