Căn biệt thự vườn trệt Tây Ninh với thiết kế rộng rãi, thoáng mát, có nhiều không gian sinh hoạt chung giúp kết nối các thành viên trong gia đình. Căn biệt thự sở hữu 4 phòng ngủ, tất cả các căn phòng đều có cửa số đón ánh nắng tự nhiên, hướng ra khoảng xanh của sân vườn.
Ảnh phối cảnh và Ảnh công trình thực tế

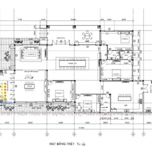
Bản vẽ xây dựng






















