

YÊU CẦU TƯ VẤN
CHỦ ĐẦU TƯ: CÔNG TY CP DƯỢC GONSA
ĐỊA ĐIỂM: TP. BIÊN HÒA, ĐỒNG NAI
THỰC HIỆN: 2018
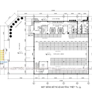
Qui mô: 16.5x17m, tổng diện tích sàn 700m2, mục đích làm kho lạnh chứa dược phẩm và văn phòng làm việc.
ĐẦU TƯ: 6.8 TỶ
CHI PHÍ THIẾT KẾ VÀ THỰC HIỆN: LIÊN HỆ 0907.131.676
YÊU CẦU TƯ VẤN