


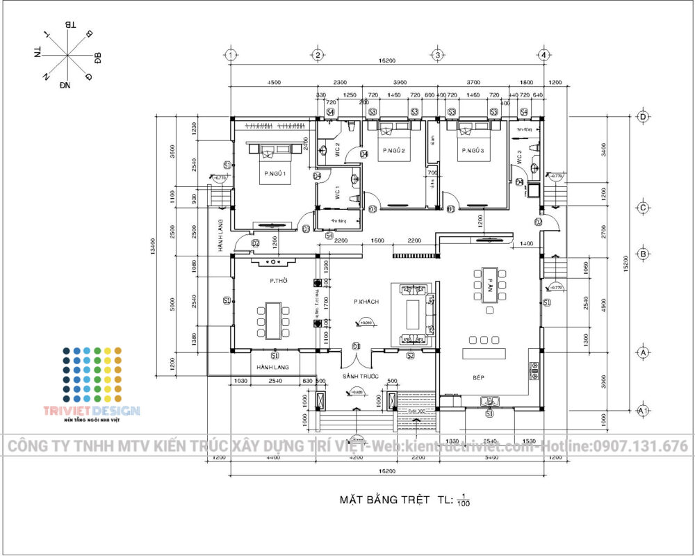
Qui mô: Diện tích xây dựng 350m2; 04 phòng ngủ; 04 WC.
– CHỦ ĐẦU TƯ: ANH SANG
– ĐỊA ĐIỂM: XÃ TÂN THÔNG HỘI, HUYỆN CỦ CHI, TP. HCM
– TỔNG NGÂN SÁCH ĐẦU TƯ: 5.5 TỶ
– QUY MÔ: 350 MẾT VUÔNG; GỒM 02 tầng; 04 phòng ngủ, 01 phòng khách, 01 phòng bếp, 4WC
– NỘI DUNG THỰC HIỆN: XÂY DỰNG NHÀ BIỆT THỰ VƯỜN TRỌN GÓI TẠI CỦ CHI
– PHÍ THIẾT KẾ VÀ XD: LIÊN HỆ 0907.131.676
YÊU CẦU TƯ VẤN